产品资料
  首页 >>> 产品目录 >>> 调节阀

气动套筒调节阀

如果您对该产品感兴趣的话,可以 sendmsg
产品名称: 气动套筒调节阀
产品型号: HW-500
产品展商: 其它品牌
产品文档: 无相关文档
简单介绍

气动套筒调节阀广泛地用于化工、炼油、冶金、电站等工业过程中的自动调节和远程控制。其特点:额定流量系数值较其它类型的直行程调节阀高。阀芯采用平衡结构,允许使用压差大。阀芯在套筒内运动,导向面积大,耐震性和耐磨性较好。在结构上将密封面和节流面分开,介质流动时对密封面的冲刷减少,从而提高使用寿命。适应性强,只需更换套筒就能满足不同的额定流量系数和流量特性的要求。噪音低。


气动套筒调节阀  的详细介绍

气动套筒调节阀形小、体轻、高性能、大容量,是符合IEC标准的新一代通用调节阀产品。它适用于一般流体介质和工艺条件的生产过程制系统。
本产品由新型的气动多弹簧薄膜执行机构和低流阻套筒阀组成。特点如下:
1、采用平衡型芯、不平衡力小,允许压差大,操作稳定。
2、阀芯导向面大,可改善由涡流和冲击引起的振荡,并减少损坏。
3、比普通单双座调节阀噪声降低10bd左右。
4、结构简单,装拆维修方便。


 


主要技术参数和性能指标

调节机构主要技术参数
公称通径mm
25
40
50
65
80
100
150
200
250
300
350
400
阀座直径mm
25
32
40
50
65
80
100
125
150
200
250
300
可与本公司
商洽生产
 
 
 
 
 
额定流量
系数Kv
直线
11
17.6
27.5
44
69
110
176
275
440
690
1000
1600
等百分比
10
16
25
40
63
100
160
250
400
630
900
1440
公称压力MPa
0.6 1.6 4.0 6.4
行程mm
16
25
40
60
100
  
流量特性
直线、等百分比、快开型
介质温度℃

-40~230℃(常温型),散热片式230~450℃(中温型),特殊订货-100~600℃

法兰标准
符合JB78-59、JB79-59标准,可按JB/79.1-94、JB/79.2-94、ANSI、JIS、DIN 等标准订货生产
阀体材质
PN
(MPa)
0.6,1.6
WCB(ZG230-450) CF3CF8 CF8M
4.0,6.4
WCB(ZG230-450)、ZG1Cr18Ni9Ti、ZG0Cr18Ni12Mo2Ti CF8 CF8M
阀体型式
直通单座铸造球型阀
阀芯材质
1Cr18Ni9、0Cr18Ni12Mo2Ti CF8 CF8M
上阀盖形式
普通式(常温型)、热片式(中温型)、低温型
可调比R
50:1
气源接头
M16×1.5
注:可为用户提供ANSI,JPI,JIS法兰的产品,其法兰距按用户需要确定。

执行机构主要技术参数
型 号
ZHA(B)-22
ZHA(B)-23
ZHA(B)-34
ZHA(B)-45
有效面积cm2
350
350
560
900
行 程mm
16
25
40
60
弹簧范围KPa
20~100(标准);40~200;80~240;20~60;60~100

性能指标
项目
指标值
项目
指标值
基本误差%
不带定位器
±5.0






 
气关
不带定位器
始点
±5.0
终点
±2.5
带定位器
±1.0
带定位器
始点
±1.0
终点
±1.0
回差%
不带定位器
3.0
气开
不带定位器
始点
±2.5
终点
±5.0
带定位器
1.0
带定位器
始点
±1.0
终点
±1.0
死区%
不带定位器
3.0
带定位器
0.4
允许泄漏量L/h
1×10-3×
阀额定
容量
 
额定行程偏差%
±2.5
注:本产品执行GB/T4213-92国家标准。

允许压差

开关
方式
执行
机构
型号
弹簧
范围
KPa
气源
压力
KPa



公称通径(阀座直径)mm
25
40
50
65
80
100
150
200

ZHA-22
20~100
20~100
40~200
0.14
0.25
0.40
-
P
P或R
3.00
6.4
6.4
 
 
 
 
 
 
 
ZHA-23
20~100
20~100
40~200
0.14
0.25
0.40
-
P
P或R
 
2.25
6.4
6.4
1.95
6.4
6.4
 
 
 
 
 
ZHA-34
20~100
20~100
40~200
0.14
0.25
0.40
-
P
P或R
 
 
 
2.36
6.4
6.4
2.04
6.4
6.4
1.67
6.4
6.4
 
 
ZHA-45
20~100
20~100
40~200
0.14
0.25
0.40
-
P
P或R
 
 
 
 
 
 
1.41
6.4
6.4
1.14
6.4
6.4

ZHA-22
20~100
40~200
80~240
0.14
0.25
0.40
-
P或R
P
 
1.5
4.5
6.4
 
 
 
 
 
 
ZHA-23
20~100
40~200
80~240
0.14
0.25
0.40
-
P或R
P
 
 
1.13
3.38
6.40
0.98
2.93
6.4
 
 
 
 
ZHA-34
20~100
40~200
80~240
0.14
0.25
0.40
-
P或R
P
 
 
 
1.18
3.54
6.4
1.02
3.06
6.4
0.84
2.51
5.85
 
 
ZHA-45
20~100
40~200
80~240
0.14
0.25
0.40
-
P或R
P
 
 
 
 
 
 
0.71
2.12
4.94
0.57
1.71
4.00

注:1P-阀门定位器;R-压力继动器。
   2允许压差为阀关闭P2=0状态,△P的*大值。
3)*大压差超过1.0MPa,阀塞、套筒表面堆焊硬质合金。

可配附件:

定位器、空气过滤减压器、保位阀、行程开关、阀位传送器、电磁阀、手轮机构等

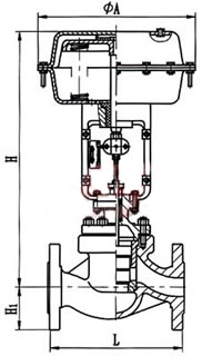
外形尺寸mm

DN
L
H
H1
质量(kg)
φA
PN16
PN40
PN64
普通
高温
PN6
PN16
PN40
PN64
PN6
PN16
PN40
PN64
25
185
197
210
410
560
50
57
70
20
24
285
40
222
235
251
455
620
65
75
85
26
35
50
254
267
286
457
627
70
82
90
30
40
65
276
292
311
610
790
80
92
100
47
66
360
80
298
317
337
622
807
95
100
107
55
78
100
352
368
394
640
850
105
110
117
125
65
99
150
451
473
508
870
1130
132
142
150
172
130
160
470
200
600
650
890
1150
160
170
187
207
175
250
250
730
775
1203
1523
187
202
225
235
350
470
580
300
850
900
1234
1554
220
230
257
265
500
660

气动套筒调节阀
ZJHM气动薄膜套筒调节阀


主要零件材料
零件名称
材料
温度范围
阀体上阀盖
HT200
-20~200℃
ZG230-450
-40~450℃
ZG1Cr18Ni9Ti
-250~550℃
ZG0Cr18Ni12Mo2Ti
-40~600℃
阀芯、阀座
1Cr18Ni9
-250~550℃
0Cr18Ni12Mo2Ti
-250~550℃
填 料
聚四氟乙烯
-40~200℃
膜 片
丁晴橡胶夹增强涤沦织物
 
压缩弹簧
60Si2Mn
 
膜 盖
A3
产品留言
标题
联系人
联系电话
内容
验证码
点击换一张
注:1.可以使用快捷键Alt+S或Ctrl+Enter发送信息!
2.如有必要,请您留下您的详细联系方式!